Каталог товаров

Сотовый канальный увлажнитель G1

Описание товара
Характеристики моделей
Купить

Описание 

  • Сотовые увлажнители адиабатического типа G1 предназначены для увлажнения, проходящего через них воздуха. В процессе увлажнения воздух подвергается значительному понижению температуры, что позволяет использовать их в качестве охладителя
  • Предназначены для общеобменной вентиляции
  • Монтаж только в горизонтальном положении
  • Типоразмерный ряд (по проходному сечению), см: от 40-20 до 100-50 

Конструктив

  • Прямоугольные присоединительные фланцы для соединения с канальной серией
  • Быстросъемная панель в боковой части корпуса
  • Встроенный каплеуловитель
  • Левая или правая сторона обслуживания (выбирается при заказе)
  • Тип корпуса – каркас из алюминиевого профиля с утеплёнными ППУ панелями
  • Оснащен универсальным монтажным комплектом, для напольного (по умолчанию) или подвесного монтажа 

Условия эксплуатации 

  • Климатическое исполнение по ГОСТ 15150-69: У3 (для эксплуатации в помещениях)
  • Температура окружающей среды от -40°С до +40°С
  • Температура перемещаемой среды:
- в рабочем состоянии (при циркуляции воды в контуре) от +5 °С до +45 °С
- в нерабочем состоянии (при сухой кассете и осушенном поддоне) от -40 °С до + 40 °С
  • Перемещаемая среда не должна содержать:
- взрывчатые и/или липкие вещества, волокнистые материалы
- пары и газы с агрессивностью по отношению к металлам, лакокрасочным покрытиям и изоляции выше агрессивности воздуха (кислотные, щелочные и другие агрессивные примеси)
- пыль и другие твердые примеси в концентрации более 100 мг/м3

  • Обязательно наличие фильтра перед увлажнителем
  • Рекомендации по качеству воды:

Хлориды (мг/л Cl–)

Cl– × С<200мг/л

Сульфаты (мг/л SO42-)

SO42- ×С<300мг/л

Бактериальный уровень (CFU/мл, KBE/мл)

CFU/мл × С<300мг/л

Принципиальная схема установки увлажнителя

G1_принципиальная схема.jpg

Файлы
Сотовые увлажнители G1.pdf

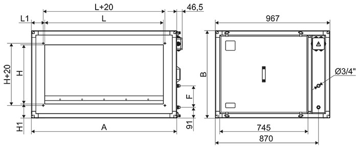
Габаритные и присоединительные размеры (мм)

G1_габариты.jpg

Типоразмер

L

H

A

B

L1

H1

F

40-20

400

200

620

420

110

110

120

50-25

500

250

720

470

110

110

120

50-30

500

300

720

520

110

110

182

60-30

600

300

820

520

110

110

182

60-35

600

350

820

570

110

110

182

70-40

700

400

920

620

110

110

182

80-50

800

500

1020

720

110

110

182

90-50

900

500

1125

740

112,5

120

182

100-50

1000

500

1225

740

112,5

120

182

Технические характеристики

Типоразмер

Напряжение, В

Ток, А

Мощность, кВт

Расход
воздуха, м3

Температура

воздуха, ºС

Относительная влажность, %

Скорость воздуха в сечении, м/с

Сопротивление по воздуху, Па

Максимальный расход воды,
л/мин

Кабель

Масса, кг

на

входе

на выходе

на

входе

на выходе

40-20

220

0,13

0,029

780

34

14,81

2,24

80

3,52

128,37

0,12

КГ 3х1,5

48

50-25

220

0,13

0,029

1170

34

14,81

2,24

80

3,13

109,1

0,18

КГ 3х1,5

52,3

50-30

220

0,18

0,039

1430

34

14,81

2,24

80

2,98

99,72

0,22

КГ 3х1,5

54,3

60-30

220

0,18

0,039

1950

34

14,81

2,24

80

3,47

133,05

0,31

КГ 3х1,5

57,5

60-35

220

0,18

0,039

2019

34

14,81

2,24

80

2,94

100,25

0,32

КГ 3х1,5

58,7

70-40

220

0,43

0,1

3040

34

14,81

2,24

80

3,27

126

0,48

КГ 3х1,5

73,1

80-50

220

0,43

0,1

3765

34

14,81

2,24

80

2,75

90,36

0,59

КГ 3х1,5

78,5

90-50

220

0,43

0,1

4580

34

14,81

2,24

80

2,86

98,49

0,72

КГ 3х1,5

82,3

100-50

220

0,43

0,1

6450

34

14,81

2,24

80

3,67

146,57

1,01

КГ 3х1,5

85,5

Электрическая схема подключения насоса увлажнителя

G1_элсхема.jpg

G1_маркировка.jpg

Не представленные в наличии модели доступны к поставке под заказ

Оповестить о поступлении

Спасибо за обращение!
Наш менеджер свяжется с вами.

Всю необходимую информацию также можно получить по телефону «горячей линии»

+ 7 800 200 93 96

или по телефону

+7 800 505 08 67 получить консультацию